What is today largely farmland that houses a former gravel pit would become a sprawling business park under a proposal rolled out this week in Woolwich council chambers.
CRA Lands Limited is looking for sweeping changes to the use of the land on the north side of Bridge Street at the edge of the township, opposite an industrial area in Waterloo.
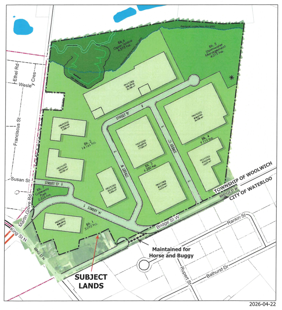
The plan encompasses 935 Bridge St. W., an 88-acre site once used for aggregate extraction, a 19-acre unaddressed parcel on Martin Grove Road, and a small plot containing a residential home at 730 King St. N. Combined, the development would involve 108 acres (43.7 hectares).
